LOWE STRUCTURES, INC.
LOWE STRUCTURES, INC.

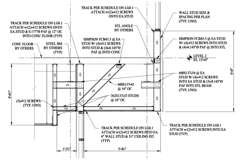
LIGHT GAUGE STEEL DESIGN

Lowe Structures, Inc. provides light gauge steel design services for contractors and sub-contractors.  Light gauge steel design services typically include component design, preparation of shop drawings, and calculation packages. 

Print | Sitemap
© Lowe Structures, Inc.

Contact Us Today!

Lowe Structures, Inc.
11651 Central Pkwy., Suite 106
Jacksonville, 32224


Phone: +1-904-992-0377

mail@lowestructures.com

Follow us on twitter!